Zur Navigation wechseln Zum Inhalt wechseln Zum Footer wechseln

GLEISDORF Büro zu vermieten: TOP-Standort mit ca. 236,81 m² Fläche! Kundenfreundlich mit Parkplätzen!

Objektart
Büro/Praxen
Objekttyp
Bürofläche
Vermarktungsart
Miete
Provision
3 BMM
Gesamtbelastung
3.007,97 €
Ort
Gleisdorf
Bürofläche
140 m²
Anzahl Zimmer
6
Nutzfläche
237 m²
Anzahl Stellplätze
3 Freiplätze
Zustand
Gepflegt
ImmoNr.
RAN-0931

Zur Immobilie

MITTEN IN DER STADT GLEISDORF- WENIGE MINUTEN BIS ZUR AUTOBAHN

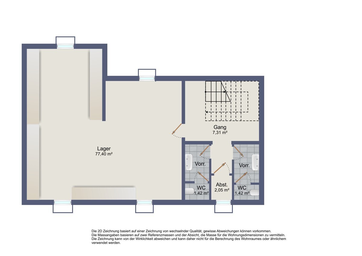
Zur Anmietung steht ein Geschäftslokal mit einer Gesamtnutzfläche von ca. 236,81 m² ( davon ca. 140,05 m² im Erdgeschoss, sowie ca. 96,79 m² im Kellergeschoss).

Vorzüge: zentrale Lage mitten in der Einkaufsstadt Gleisdorf, gute Raumaufteilung, ausreichend Parkplätze etc.

Über einen selbstständigen Eingang im Erdgeschoss gelangt man vom großzügigen Eingangs- und Empfangsbereich in die Büroräumlichkeiten, und von dort aus über eine Stiege in das Kellergeschoss.

Raumaufteilung:
EG: Eingangsbereich, Empfangsraum, 4 Büros
KG: Sitzungszimmer, Archiv, Küche mit Esstisch, 2 Sanitärräume

Neben allgemeinen PKW- Stellflächen sind dem Objekt 3 Parkplätze im Innenhof zugeordnet.

Im Moment wird mit Gas geheizt. Derzeit erfolgt eine Umstellung auf Fernwärme.

HWB
89,4 kWh/(m²a)
Klasse HWB
C
fGEE
1,21
Klasse fGEE
C
Baujahr
1997
Nutzungsart
Gewerbe

Die Infrastruktur ist sehr gut. Öffentliche Verkehrsmittel, sowie Einrichtungen der Nahversorgung und örtlicher Infrastruktur befinden sich in fußläufiger Entfernung. Die Lage ist für gewerbliche Nutzungen und als Unternehmensstandort sehr gut geeignet.

Entfernung:
Autobahn: ca. 5 min
Bus: ca 3 min fußläufig
Bahnhof: ca. 3 min fußläufig

Weitere Informationen zur genauen Lage der Immobilie entnehmen Sie bitte dem beigefügten Lage-Exposé!

Rundgang

Wir bitten um Ihr Verständnis, dass nur schriftliche Anfragen mit Angabe vollständiger Kontaktdaten bearbeitet werden können

INTERESSIERT? Ich freue mich von Ihnen zu hören.

Ihr Ansprechpartner

Harald Rannegger

Herr Harald Rannegger

Ihre Anfrage zu der Immobilie „GLEISDORF Büro zu vermieten: TOP-Standort mit ca. 236,81 m² Fläche! Kundenfreundlich mit Parkplätzen!“ (RAN-0931)

* Pflichtfelder